 
    




 
     
     
     
         
   
       国内在监项目
国内在监项目     高端住宅
 高端住宅 项目描述
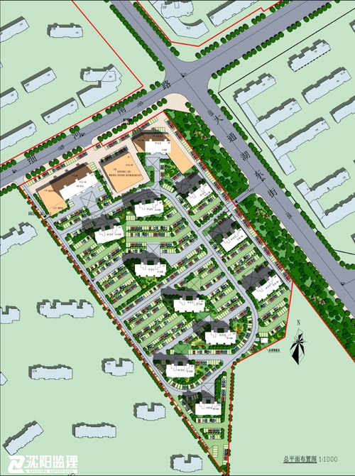
项目描述| 项目名称 | “新城悦府”回迁房建设项目 | ||||
| 项目地址 | 于洪区 36#地(东至规划路,南至用地界线,北至细河南路,西至用地界线) | ||||
| 项目 | 数量 | 单位 | |||
| 总占地面积 | 54599.5 | 平方米 | |||
| 总建筑面积 | 164252.9 | 平方米 | |||
| 地上建筑面积 | 163352.9 | 平方米 | |||
| 其中 | 住宅 | 157135.1 | 平方米 | ||
| 商业 | 4817.8 | 平方米 | |||
| 附属公建 | 1400.0 | 平方米 | |||
| 其中 | 幼儿园 | - | 平方米 | ||
| 物业用房 | 550.0 | ||||
| 社区用房 | 600.0 | ||||
| 卫生服务用房 | 200.0 | ||||
| 垃圾堆放点 | 50 | ||||
| 地下建筑面积 | 900 | 平方米 | |||
| 其中 | 预留消防水池及生活供水泵房换热柴发等设备 | 900 | 平方米 | ||
| 地下人防面积 | - | ||||
| 容积率 | 3.0 | 
 | |||
| 总户数 | 2484 | 户 | |||
| 其中 | 
 | 34层(7栋) | 1962 | 户 | |
| 
 | 30层(3栋) | 360 | 户 | ||
| 
 | 28层(1栋) | 162 | 户 | ||
| 
 | 11层(1栋) | 90 | 户 | ||
| 建筑限高 | 100.00 | 米 | |||
| 建筑密度 | 15.92% | 
 | |||
| 绿化率 | 35% | 
 | |||